Bespoke Service
Let us help you secure sites and
grow your business fast!
Our skilled land sourcing professionals use the latest in software technology, an experienced eye and skillset to support you every step of the way. Securing viable sites fast for our partners is our priority.
Case Study 1 : Beighton Business Park, Near Sheffield
New South Yorkshire Service Station
PROJECT SUMMARY
In just under 6 months, identified, secured and promoted approved scheme in SPV for a new to industry Petrol Filling Station with Convenience Store and 4 carwash bays. 1.2 acre site on the edge of a new business park, adjacent the A57 Chesterfield Road with 24,000 vehicles per day and adjacent to Beighton Business Park and the new Gullivers Valley. The site was sold to Kay Group a very dynamic Retail operator.
Welcome to
Beighton, Sheffield
"We are excited to unveil our new Beighton service station to the public"
Ken Kay, owner and chief executive of the Kay Group.
Case Study 2 : Royston, Cambridgeshire
De 2.2 acres site, Former Derelict Pub
PROJECT SUMMARY
The site was originally identified for Starbucks in 2015. Jason secured in 2017 and in 2018, planning was secured for 3 Drive Throughs. Planning was then modified for a Drive Through and New To Industry PFS. In 2020, Positive were approached by Cam Store in Royston and agreed to secure planning on the site for a 10,000 square foot storage facility. February 2021, DPP Submitted for Self Storage.
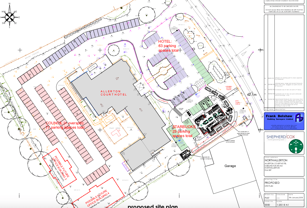
Case Study 3: Starbucks Drive Through, North Allerton
0.35 acre site, identified & introduced to Starbucks for an 1800 Drive Through
PROJECT SUMMARY
Site was identified as a good location for a Starbucks Drive through Jason approached Starbucks and agreed Terms with 23.5 Degrees and the Hotel Operators.







































































